Ngôi nhà phố 7x 18m tại KDC Phú Xuân – Nhà Bè với tổng diện tích thiết kế 236m² được Lio Decor thiết kế và thi công nội thất nhằm mang đến không gian sống hiện đại, sang trọng nhưng vẫn gắn liền với sự ấm áp gia đình.
1. Thiết kế cải tạo ngoại thất
Mặt trước ngôi nhà trước và sau khi cải tạo

Mặt sau ngôi nhà trước và sau khi cải tạo

2. Thiết kế nội thất
Tầng 1 – Khu để xe
-
Gara rộng rãi, đủ sức chứa xe hơi và xe máy.
-
Khu vực phụ trợ, kho để đồ được bố trí hợp lý, đảm bảo sự gọn gàng.

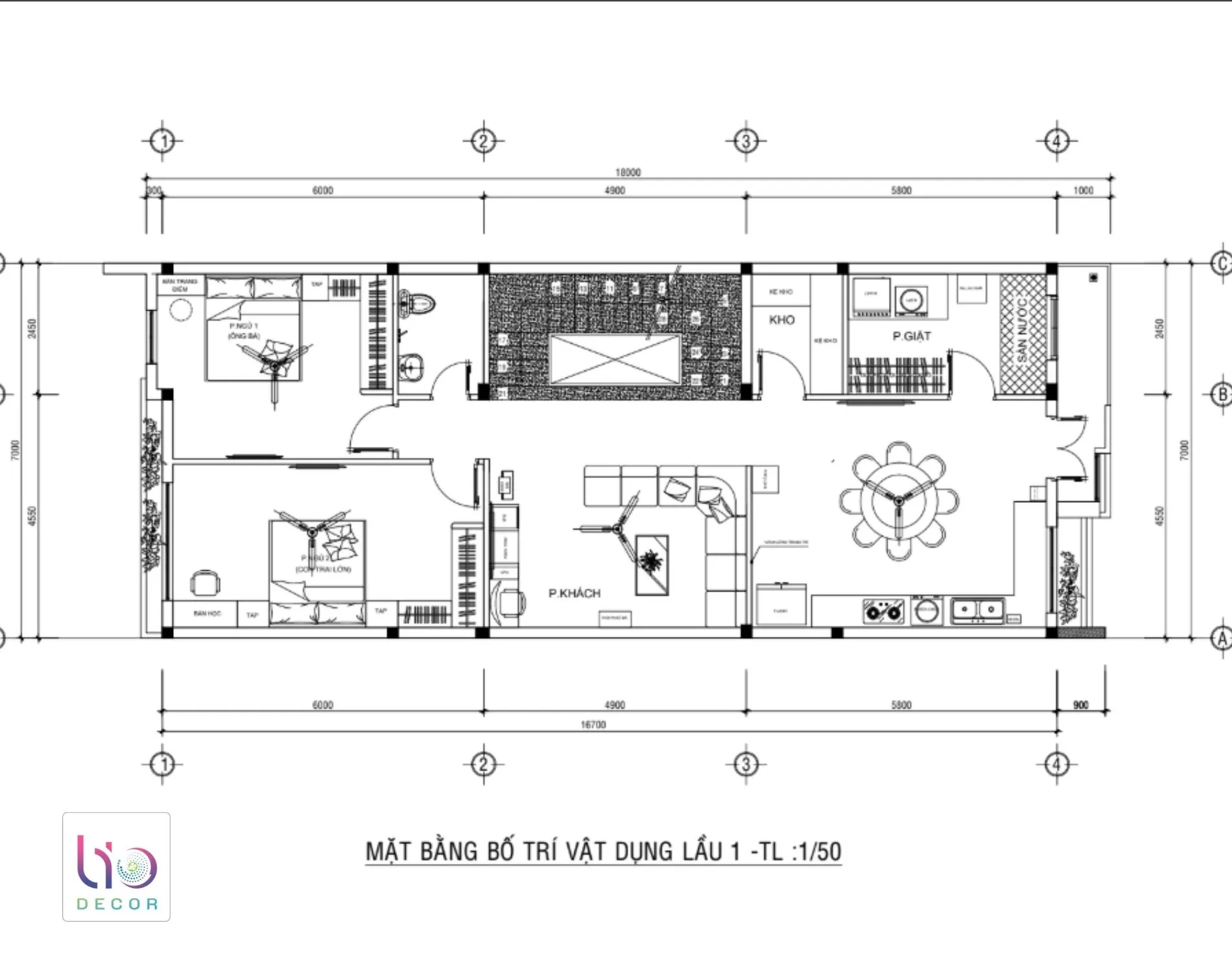
Tầng 2 – Không gian sinh hoạt

-
Phòng khách: Bố trí sofa chữ L kết hợp kệ tivi, liên thông với khu bếp – bàn ăn, tạo không gian mở hiện đại.
-
Phòng bếp & bàn ăn: Bếp chữ I kết hợp bàn tròn 6 ghế. Không gian vừa ấm cúng vừa sang trọng, thuận tiện cho các bữa cơm gia đình.
-
Phòng giặt + kho: Bố trí cuối nhà, thuận tiện và gọn gàng.
- WC chung: Đơn giản và thuận tiện

Khu vực phòng giặt phơi

Kho

WC chung

Phòng ngủ ông bà: Thiết kế tiện lợi, đơn giản, gam màu ấm cúng sang trọng. Vị trí gần phòng khách, đảm bảo sự thuận tiện.
Trước khi thiết kế cải tạo

Sau khi thiết kế

Phòng ngủ con trai lớn:

Tầng 3

-
Phòng Master: Rộng rãi, sang trọng với giường lớn, bàn trang điểm, phòng thay đồ và toilet riêng.


-
Phòng ngủ con trai: Giường đơn, bàn học, hệ tủ lưu trữ tối ưu, ban công hướng sáng tự nhiên.

4. Điểm nhấn thiết kế
-
Phân tách công năng thông minh: Tầng 1 để xe – Tầng 2 sinh hoạt chung – Tầng 3 riêng tư.
-
Ánh sáng & thông gió: Ban công, giếng trời và cửa sổ lớn mang lại sự thông thoáng.
-
Tông màu hiện đại: Trắng, be, xám kết hợp gỗ ấm mang đến sự sang trọng, gần gũi.
-
Giải pháp tiện ích: Tủ âm tường, không gian lưu trữ thông minh, phòng thay đồ riêng biệt.
5. Kết luận
Dự án thiết kế nội thất Nhà phố Nhà Bè 236m² là sự kết hợp hài hòa giữa thẩm mỹ hiện đại và công năng tối ưu. Mỗi không gian đều được tính toán chi tiết để vừa đảm bảo sự thoải mái, vừa nâng cao trải nghiệm sống của gia đình.
✨ Nếu bạn đang tìm kiếm một giải pháp nội thất vừa tinh tế, vừa thực tế để làm mới tổ ấm của mình– hãy để Lio Decor biến căn hộ của bạn trở nên đặc biệt hơn. Liên hệ Lio Decor tư vấn thiết kế – thi công trọn gói.
Xem thêm: Tổng hợp các dự án Lio Decor đã thiết kế và thi công tại Q7




















