Từ một mặt bằng chia nhỏ truyền thống, nhóm thiết kế đã lựa chọn giải pháp mở rộng không gian sinh hoạt chung bằng cách loại bỏ 1 phòng ngủ, kết nối các khu vực bếp – bàn ăn – phòng khách thành một tổng thể liền mạch, rộng rãi và đầy ánh sáng.
Toàn bộ dự án được triển khai với tư duy “Less but better” – hạn chế chi tiết rườm rà, tập trung vào tỉ lệ, chất liệu và ánh sáng, mang lại không gian sống hiện đại nhưng vẫn ấm cúng.

Từng đường nét, vật liệu và ánh sáng được tính toán kỹ lưỡng để đảm bảo vừa công năng sử dụng thực tế, vừa thể hiện gu thẩm mỹ tinh tế của gia chủ. Thiết kế sử dụng tone màu trung tính – gỗ ấm – ánh sáng tự nhiên, giúp không gian trở nên ấm áp, hiện đại và dễ sống, phù hợp với nhịp sống thành thị.

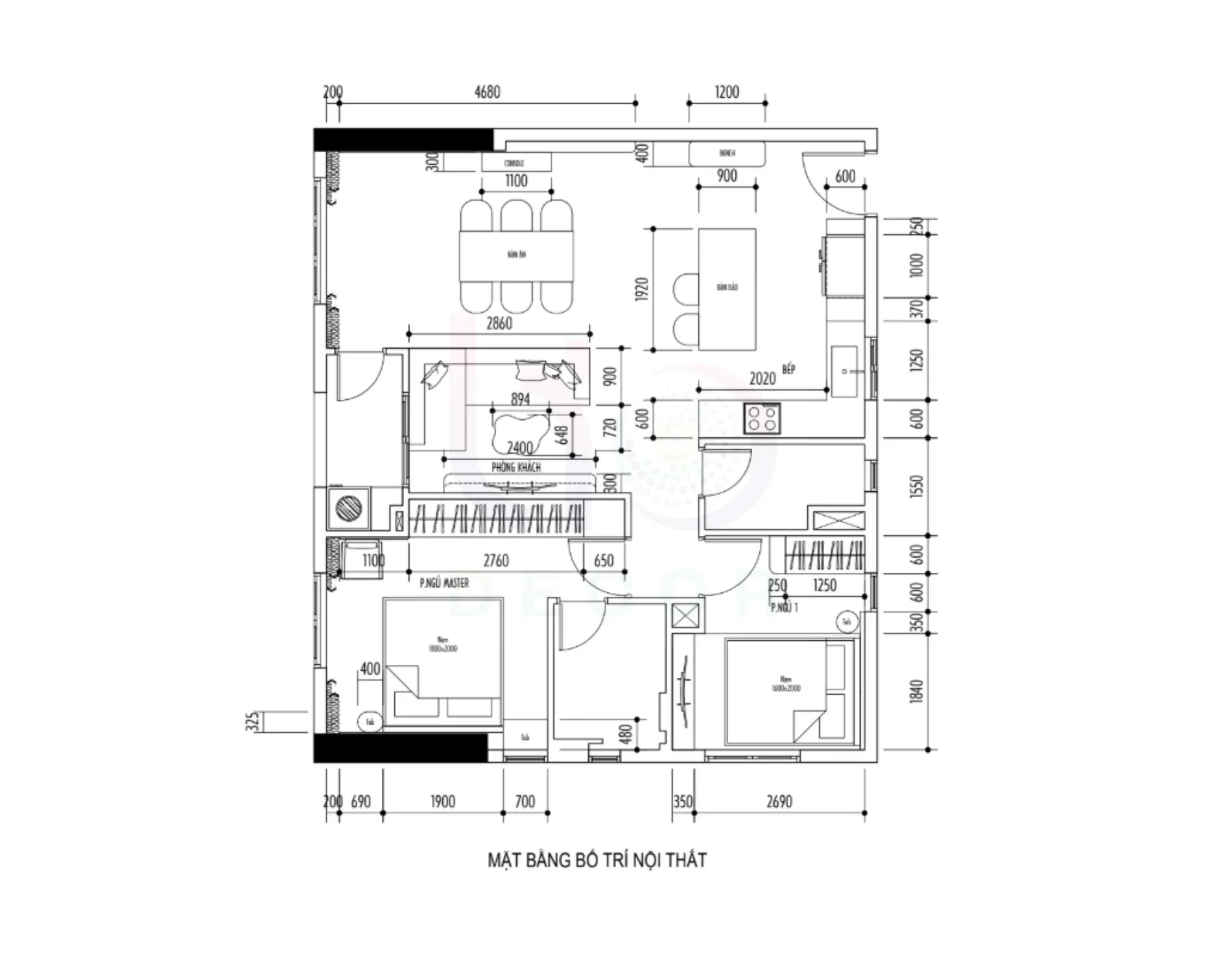
🍽️ Khu vực bếp – bàn ăn – phòng khách
Không gian trung tâm của căn hộ là khu vực sinh hoạt mở:
-
Bếp chữ L kết hợp đảo bếp trung tâm, vừa để nấu nướng vừa có thể dùng làm quầy bar/ăn sáng.
-
Bàn ăn 6 ghế đặt trên trục thẳng với đảo bếp, tạo sự liên kết tự nhiên.
-
Phòng khách rộng rãi, sofa chữ L đặt sát vách cửa sổ, hướng về TV treo tường giúp mở rộng không gian chiều sâu.
-
Hệ thống chiếu sáng đa lớp (đèn trần, đèn hắt, đèn rọi tranh) giúp không gian lung linh vào buổi tối.
-
Màu sắc: gỗ walnut – be sáng – ánh vàng ấm → sang trọng nhưng gần gũi.
👉 Đây là trái tim của căn hộ, nơi các thành viên quây quần và tận hưởng sự kết nối.
Thiết kế 3D

Thi công


🛏️ Phòng ngủ master
Phòng master mang tinh thần thư giãn – nhẹ nhàng – sang trọng:
-
Giường bọc nệm xám trung tính, tab đầu giường bo cong mềm mại.
-
Tủ áo âm tường full trần với cánh kính sọc mờ và đèn LED hắt bên trong, tạo chiều sâu thị giác.
-
Cửa sổ lớn đón ánh sáng tự nhiên, rèm 2 lớp điều tiết linh hoạt.
-
Tông màu be – gỗ – xám nhẹ giúp không gian master yên bình, dễ chịu.
Thiết kế 3D

Thi công

🪄 Phòng ngủ nhỏ
Phòng ngủ nhỏ được xử lý thông minh để tối ưu diện tích mà vẫn đủ công năng:
-
Tủ áo bo góc mềm mại, tránh cấn lối đi – tăng cảm giác thoáng.
-
Giường kê sát tường cửa sổ giúp tận dụng diện tích tối đa.
-
Gương đứng + ánh sáng tự nhiên từ hai hướng giúp phòng sáng, rộng và nhẹ nhàng.
-
Tường đầu giường ốp panel kết hợp lam đứng trang trí – điểm nhấn tinh tế.
Thiết kế 3D

Thi công

Dự án cải tạo căn hộ 88m² tại ICON 56, Bến Vân Đồn – Quận 4 là hành trình biến một mặt bằng 3 phòng ngủ truyền thống thành không gian sống mở hiện đại, đề cao sự thoáng sáng và kết nối. Thay vì chia nhỏ nhiều phòng, nhóm thiết kế đã loại bỏ 1 phòng ngủ, mở rộng khu vực sinh hoạt chung – tạo nên trục không gian bếp, bàn ăn và phòng khách liền mạch, rộng rãi và giàu cảm xúc.
Nếu bạn đang tìm kiếm một giải pháp nội thất vừa tinh tế, vừa thực tế để ở – hãy để Lio Decor biến căn hộ của bạn trở nên đặc biệt hơn.
Liên hệ Lio Decor tư vấn thiết kế – thi công trọn gói.
Xem thêm: Tổng hợp các dự án Lio Decor đã thiết kế và thi công












